
Sign up for our Property Alert Service and get notified as soon as properties that match your requirements become available on the market.

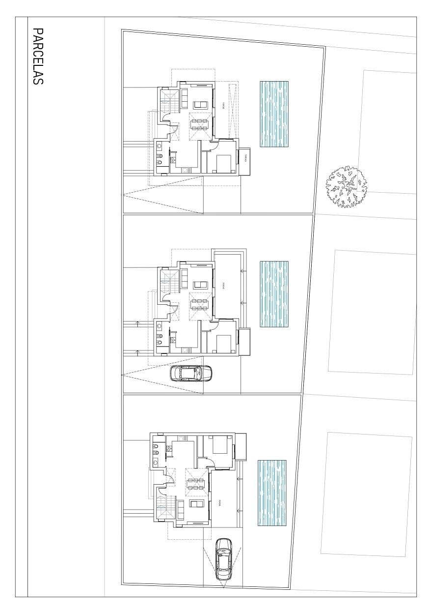
NEW BUILD VILLAS IN TORREVIEJA New Build Project of 3 villas in a quiet residential area Aguas Nuevas of Torrevieja, province of Alicante. Beautiful villa has 3 bedrooms, 3 bathrooms, living room - dining room - kitchen, 2 terraces, balcony, basement - garage, solarium. Villas located 10 minutes walk from the sea, next to the park, shops, restaurants, cafes. Torrevieja is a Spanish town in the province of Alicante, on the Costa Blanca. It is known for its typically Mediterranean climate and coastline. It has boardwalks with resorts along its sandy beaches. The small Museum of the Sea and Salt houses exhibitions on the fishing and salt history of the city. In the interior, the Lagunas de La Mata-Torrevieja Natural Park has trails and two salty lagoons, one pink and the other green. Alicante airport located 40 minutes away and Murcia airport about 1 hour away.